Espectacular este proyecto de rehabilitación de una vivienda del s.XVIII en el condado de Columbia, por los arquitectos Messana O’Rorke.
El encargo era el de desarrollar una vivienda unifamiliar moderna dentro del marco existente que albergara todos los requisitos de la familia: cocina, cuarto de baño, dormitorios, gimnasio con baño de vapor y sauna… todo ello respetando la vivienda original por expresa petición de los propietarios.
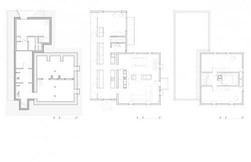
La casa fue planificada con dos dormitorios y un cuarto de baño en la planta superior y con una sala de estar y el comedor en la planta baja. En el edifico anexo se decidió colocar la cocina, el dormitorio de invitados y un aseo. En el sótano encontamos el gimnasio.
En la edificación original se utilizó un pavimento de madera del s.XVIII, localizado en una tienda de antiguedades local procedente de una casa demolida veinte años atrás. En la zona de obra nueva del edificio anexo se ha utilizado un pavimento de piedra caliza.
Vía: Archdaily. © Photographs & Project Messana O’Rorke. Visto en MI CASA.











Preciosa la rehabilitación!!! Estupendo blog por cierto.
Qué casa más brutal en qué lugar más brutal. Envidia de la mala…..
no es sano, no es sano este blog!!
Pingback: Articulo Indexado en la Blogosfera de Sysmaya