
¡Buenos días! Hoy, en el blog, viajamos a Taiwan para visitar esta casa tan particular y original, diseñada este 2015 por HAO Design.


En ella viven una pareja de interioristas y su hija pequeña. Para ellos era muy importante que su nuevo hogar estuviese diseñado para fomentar las reuniones familiares.


Nuestro estilo de vida nos impide pasar el suficiente tiempo en familia. Estos momentos juntos son los más valiosos y la vivienda debe estar al servicio de ellos, de ahí el concepto abierto de las zonas comunes y el enfoque alternativo del interiorismo.


Así, se decidió que el espacio infantil fuese el protagonista de la vivienda: las zonas de lectura, de juegos y de estudio conforman el eje central de la casa.

Al entrar en la vivienda, los primero que se observa es un amplio espacio, de aproximadamente 60m2, destinados al ocio y la recreación. Es un espacio flexible e interactivo que fomenta la creatividad y la comunicación.

Un tobogán y un columpio llaman nuestra atención, per es la gran mesa de madera la que preside el espacio, y sobre ella las lámparas suspendidas «Favourite Thing» de Chen Karlsson, donde se pueden introducir pequeños objetos y retroiluminarlos. También destaca la gran biblioteca y la pared de pizarra, donde toda la familia anota mensajes y realiza dibujos.

La cocina es una zona de transición entre los espacios públicos y los privados. A pesar de su tamaño, la cocina está diseñada cuidadosamente, con numerosos espacios de almacenamiento alrededor de los cuatro lados de la isla central. Además, en la parte superior se han incorporado bastidores de acero negro, de estilo industrial, que funcionan como espacio de almacenamiento y como foco de atención.


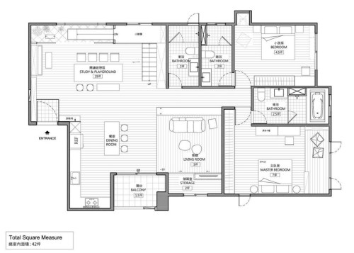
Por último, os dejo con un plano de planta, para entender mejor la distribución del espacio de esta vivienda, que como vemos, tiene un concepto completamente distinto al que estamos acostumbrados a ver. Seguro que alguna idea positiva sacamos de ella, ¿No os parece?

Images © Hey!Cheese. Vía: Archdaily
Pingback: Un pequeño dúplex en Taiwán | el tornillo que te falta