
¡Buenos días! Hoy viajamos hasta el centro de Milán para visitar este pequeño y luminoso apartamento de 50 m², reformado por AIM Studio.


La casa, en absoluta ruina, se venía abajo. Así que el proyecto comenzó solucionando los problemas estructurales, reemplazando las vigas deterioradas y distribuyendo su carga.

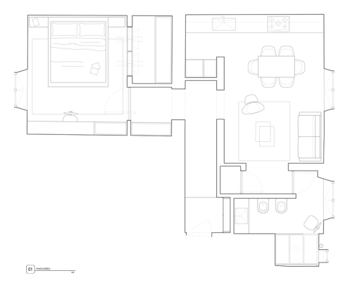
Con la estructura afianzada se procedió a redistribuir los espacios. Como los metros cuadrados escaseaban, se optó por eliminar todas las paredes, excepto el muro de carga, que divide la zona social de la privada.


Así, en el lado público de la vivienda encontramos el salón, la cocina, el comedor y el baño y en la zona privada se ha situado el dormitorio con vestidor.


En la cocina, elegante y minimalista, contrasta el acero pulido de los muebles inferiores con el mármol de Carrara de la estantería superior, destinada al almacenaje abierto.

La pared azul es el foco de atención y funciona como un elemento divisorio de resina, un elemento compartido en ambos lados, que aísla y da intimidad.


En cuanto al dormitorio, se ha prestado especial atención al almacenaje, sobre todo en el armario vestidor, diseñado a medida con puertas giratorias y con los zapateros incorporados.


En definitiva, esta es una vivienda que presentaba muchos problemas iniciales pero que, gracias a un diseño inteligente, se ha convertido en un hogar bastante funcional y acogedor… ¿No os parece? ¡Feliz día!

Vía: AD Architectural Digest. Imágenes © Simone Furiosi. Estilismo: Federica Biasi.




