Archivo de la etiqueta: grácia

Ático en el barrio de Gràcia, de TWOBO Arquitectura

twobo-arquitectura-7

¡Buenos días! Hoy visitamos un fantástico ático de 140 m², situado en el barrio de Gràcia (Barcelona), que ha sido recientemente reformado por el estudio TWOBO Arquitectura.

twobo-arquitectura-1

twobo-arquitectura-2

twobo-arquitectura-3

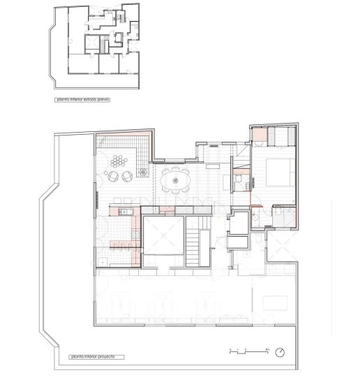
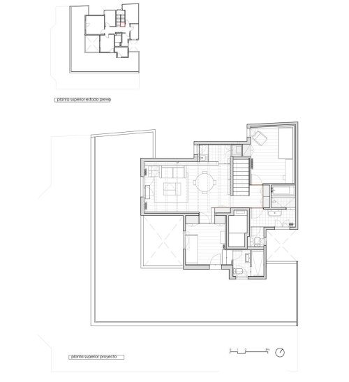
El proyecto comenzó con el derribo de los muros, desechando toda la distribución anterior, para dejar intacto tan sólo el perímetro del edificio. También se derribaron los falsos techos, lo que permitió redescubrir las preciosas bovedillas catalanas.

twobo-arquitectura-5

twobo-arquitectura-12

De este modo se logró ganar espacio y extender la generosa luz natural que ofrece una sexta planta a todos los puntos de la vivienda.

twobo-arquitectura-4

twobo-arquitectura-6

«El proyecto nace al reconocer la geometría quebrada de este perímetro.»

twobo-arquitectura-8

twobo-arquitectura-9

Así, tras un estudio y análisis del espacio disponible, fueron surgiendo, siempre enganchados a los muros, los rincones que iba ofreciendo el perímetro, como si fuese el edificio el encargado de determinar la distribución más idónea para la vivienda.

twobo-arquitectura-11

twobo-arquitectura-10

«No hacen falta tabiques, colocando las distintas piezas se va caracterizando el espacio. Los muebles de la cocina, una estantería, un sofá de obra, un rincón de lectura, el zaguán de la escalera…. Parece que nombrándolos ya se vaya haciendo el proyecto.»

twobo-arquitectura-13

twobo-arquitectura-14

Así surge una vivienda singular, cálida, luminosa, acogedora, funcional y sobre todo con mucho carácter, en gran medida generado a través de la propia arquitectura.

\SERVIDORDatos_Two-bo arquitectura_PUBLICACIONES2015 FADAT

Para terminar os dejo la planta inferior y la superior, ambas con su estado previo arriba a la izquierda. ¡Feliz día!

\SERVIDORDatos_Two-bo arquitectura_PUBLICACIONES2015 FADAT

Imágenes © TWOBO Arquitectura.

En la casa estudio de Paula Bonet

PAULA BONET (7)

¡Buenas noches! Antes de bajar la persiana os dejo con esta entrada doblemente especial…

PAULA BONET (2)

PAULA BONET (8)

Sabéis que, como interiorista que soy, me encanta adentrarme y conocer todo tipo de casas.

PAULA BONET (3)

PAULA BONET (10)

No es cotilleo… ¡Os lo prometo! Se trata más bien de conocer los distintos universos de cada persona: con sus gustos, sus objetos, su forma de entender la decoración,… Me resulta enriquecedor e inspirador.

PAULA BONET (4)

PAULA BONET (5)

Así que os podéis hacer a la idea que cuando la casa en cuestión es además el estudio de un artista el interés es todavía mayor, porque se mezclan dos de mis pasiones.

PAULA BONET (1)

Pues bien, el caso es que hoy viajamos hasta el barrio de Gràcia, en Barcelona para conocer el espacio donde vive y trabaja la pintora Paula Bonet, artista que me encanta y cuyo trabajo os recomiendo conocer.

PAULA BONET (9)

PAULA BONET (6)

La vivienda, de 90 metros cuadrados, conserva todos los elementos originales«No hice ninguna reforma. Me enamoró la luz y el silencio. La cristalera del comedor y los suelos. Las persianas verdes de la terraza. Los techos altos. La luz que entra en la cocina. La calma que la casa transmite». 

PAULA BONET (11)

Me encanta porque cada espacio nos habla de la forma que Paula tiene de trabajar, nos deja entrever cuáles son sus inspiraciones, sus recuerdos, sus gustos e intereses… ¡Un auténtico privilegio que nos acerca, un poco más, a la obra de esta artista!

PAULA BONET (12)

Vía: AD Architectural Digest. Imágenes © César Segarra.

Un piso con encanto en el barrio de Gràcia

PPT Interiorismo (1)

¡Buenos días! Hace unas semanas os enseñé el Hostal Yoga Weeks de PPT Interiorismo, una de las entradas que más gustaron en el mes de mayo.

PPT Interiorismo (17)

PPT Interiorismo (9)

Así que he decidido enseñaros otro proyecto de este estudio: una reforma de una vivienda de 80m², en el barrio de Gràcia de Barcelona: «Una joyita destrozada con suelos modernistas y techos altos.»

PPT Interiorismo (3)

PPT Interiorismo (12)

La particularidad principal de este proyecto es que la reforma de la vivienda iba encaminada a conseguir alquilarla en mejores condiciones, por lo que no se sabía cuáles serían las necesidades de los futuros inquilinos. Aun así, el propietario quiso darle un punto de calidad y personalidad propia.

PPT Interiorismo (6)

PPT Interiorismo (13)

Para la reforma, se decidió conservar la distribución original. Los cambios más significativos fueron la ampliación de la cocina abriéndola al salón y la incorporación de un nuevo baño adicional.

PPT Interiorismo (14)

PPT Interiorismo (2)

«Restauramos sus suelos, pintamos techos, añadimos molduras y amueblamos con encanto y sencillez

PPT Interiorismo (8)

PPT Interiorismo (10)

En la cocina es donde se encuentra el diseño más detallado. Está abierta al salón y tiene una magnífica isla celeste y blanca que contrasta con los muebles en roble natural. El toque divertido e inesperado lo aportan las baldosas blancas con motivos de peces.

PPT Interiorismo (16)

PPT Interiorismo (15)

«En los baños continuamos con la estética modernista y dibujamos mosaicos en los suelos combinados con las baldosas beige, hexagonales y cuadradas en las paredes. ¡Para no aburrir!»

PPT Interiorismo (5)

PPT Interiorismo (11)

Otro de los puntos importantes del proyecto fue resolver la iluminación del salón. Finalmente se decantaron por una luz indirecta creada a partir de los apliques de pared y la invención de un cortinero con bombillas suspendidas que aportan mucho ritmo y frescura a la estancia.

PPT Interiorismo (4)

PPT Interiorismo (7)

Vía: PPT Interiorismo. Imágenes © PPT Interiorismo.

Reforma de una vivienda en el barrio de Gràcia

Neus Casanova (1)

¡Buenas tardes! Hoy volvemos a mi querida Barcelona para ver una de las últimas reformas de Neus Casanova, fundadora del estudio de diseño gráfico y de interiorismo de-goma: Un piso de 65 m2, original del siglo XIX, situado en la plaza de la Virreina del barrio de Gràcia.

Neus Casanova (13)

La casa encerraba muchas décadas de historias personales y de elementos arquitectónicos originales que han sido fundamentales a la hora de replantear la nueva distribución y de decidir todo lo que debía conservarse y restaurarse.

Neus Casanova (2)

El piso contaba con tres habitaciones, un comedor, una cocina y un baño de reducidas dimensiones. Además, algunos de estos espacios no tenían ventana. Así que el principal reto ha sido derribar tabiques y abrir huecos en las paredes para conectar los espacios y dotarlos de luz natural.

447

Neus Casanova (7)

«Las vigas de madera y las ventanas de los balcones se restauraron y se recuperaron las baldosas que delimitan los espacios del comedor y del estudio, combinándolas con otro suelo de madera. En el salón, se picó uno de los muros para dejar a la vista el ladrillo original y darle un toque de contraste a las paredes blancas y lisas que imperan el ambiente.»

Neus Casanova (6)

Neus Casanova (8)

La cocina se conecta al comedor a través de una ventana interior. En ella vemos una decoración retro, donde destacan las baldosas rectangulares blancas, el frigorífico Smeg, el teléfono antiguo y las lámparas de estética industrial.

Neus Casanova (4)

«Al entrar en el piso, nos encontramos directamente con el estudio-recibidor y con un gran contenedor de madera que puede cerrarse gracias a un panel, donde el único objeto presente es la cama. Esta habitación se encuentra a otro nivel y, bajo ella, hay dos grandes cajones que multiplican el espacio de almacenamiento.»

Neus Casanova (5)

Neus Casanova (10)

«El baño, de dimensiones reducidas, está revestido por un único material de microcemento para dar homogeneidad. Se ha diseñado una pared-mobiliario funcional a partir de pladur y madera, donde se esconden las instalaciones de las piezas sanitarias y, al mismo tiempo, le da continuidad visual.»

Neus Casanova (9)

Neus Casanova (3)

Además, por último, se ha aprovechado el altillo sobre el baño para crear una zona de descanso extra. En resumen: un sin fin de ideas creativas para estirar el espacio, creando espacios de almacenaje suficientes, consiguiendo sensación de amplitud y bañando de luz natural cada rincón de la casa.

Neus Casanova (14)

454

Imágenes © Neus Casanova. Vía: AD Architectural Digest.

Lukumás en Barcelona

lukumas1

¡Buenas tardes! Hoy merendamos en Barcelona, en concreto en el barrio de El Raval (Valldonzella 36), en el recién inaugurado obrador griego Lukumás.

82

Lukumás es la palabra que se usa en griego para el “doughnut”. En forma de anillo, circular o bolita rellena de cremas, chocolates y mermeladas, se espolvorea con azúcar, se glasea o se cubre con otras coberturas de distintos sabores.

42

Todo empezó en Grecia, en  1992, cuando Theo P. y su esposa Vasiliki montaron un obrador de lukumás en Salónica. Empezaron distribuyendo en panaderías y pastelerías, pero pronto pasaron a vender también directamente al público que hacía colas para hacerse con una caja.

62

Su hijo Petros decidió viajar hasta Barcelona para formarse como diseñador gráfico, pero pronto decidió continuar la tradición familiar abriendo su propio obrador donde vender lukumás de la manera de siempre: usando las materias primas de la mejor calidad y preparándolos diariamente con el mayor cuidado y toda la atención a los detalles.

22

El primer local lo inauguró en el barrio de Gracia (Torrent de l’Olla, 169), y ha tenido tanto éxito que se ha lanzado con este segundo establecimiento, que estéticamente tanto me gusta, con los azulejos blancos rectangulares tipo metro, las carpinterías de hierro y las vigas de madera vista. ¡Sin duda, será una visita imprescindible en mi próximo viaje a Barcelona!

32

Por cierto, investigando sobre este negocio he llegado a esta entrevista a Petros que me ha encantado. Os recomiendo su lectura para que conozcáis un poco mejor su trabajo y dedicación. Os dejo con una de las preguntas para ir abriendo boca:

13

«¿Qué deberían saber tus clientes de tu negocio? Primero que soy griego. Que “lukumás” es la palabra que se usa en Grecia para el donut y que nuestra receta es la que siguen usando mis padres en su obrador en Salónica desde hace más de 20 años. También deberían saber que mis ojeras están ahí diariamente no porqué vivo la vida loca sino porqué me despierto cada mañana a las 5 para que sea todo siempre fresco como Dios manda.»

52

Imágenes © Caro Adrover. Vía: Lukumás

Hoy es vuestro turno (II)

¡Buenas tardes! Como sabéis, me encanta recibir vuestros correos, donde generalmente me contáis vuestros últimos proyectos, algo muy enriquecedor para mí. Hoy, de nuevo, quiero compartir con vosotros algunos de ellos, a ver qué os parecen.

Pack Antimorriña 

PACK ANTIMORRIÑA (1)

Este Pack Antimorriña, diseñado por Tolotola, está compuesto por una taza y una infusión ecológica galega de Milhulloa. Me parece una idea súper bonita para regalar a alguien querido que está lejos. Tal y como están las cosas, todos conocemos a más de uno que vive fuera, o hemos sentido la morriña en nuestra propia piel.

PACK ANTIMORRIÑA (2)

«Cuando empieces a sentir los primeros síntomas de morriña, bébete a sorbitos esta infusión. En breves segundos, sentirás el efecto reconfortante de algo parecido a un abrazo de un ser querido, un olor familiar o una sensación similar a la de estar en casa. Tener siempre cerca cuando te encuentras lejos».

CERVECERÍA ÍTACA

minuscula estudi arquitectura interior

Cristina Casals y Teresa Duran son las dos diseñadoras de interiores que están detrás de Minúscula. Un estudio que, a pesar de su breve tiempo de existencia, ya ha firmado numerosos proyectos, como las franquicias de esta cadena de cervecerías.

minuscula estudi arquitectura interior

Este que me envía Cristina es el proyecto de interiorismo para la nueva franquicia del grupo Ítaca, en este caso en el barrio de Gràcia de Barcelona. Con este espacio se quiere consolidar la imagen corporativa de la marca a base de un diseño fresco, alegre, que evoque elementos mediterráneos.

minuscula estudi arquitectura interior

Celosias, colores azules y tierras, maderas de pino y las macetas de tierra son los elementos básicos y que se van repitiendo en los diferentes locales y proyectos de interiorismo del grupo. Os recomiendo visitar su página web para ver otros proyectos, tanto comerciales como residenciales.

PREMIOS ELLEDECOR 2014

ELLE

Un año más, todas las ediciones internacionales de Elle Decor anuncian sus célebres galardones, que se otorgarán en Milán durante la Design Week. Los lectores somos lo que elegimos a los finalistas que presentará Elle Decor España y que competirán con los de las diferentes ediciones. Si te apetece, puedes ver los finalistas y votar en el siguiente enlace.

ELLE DSIGNIO

Patxi Cotarelo, de DSIGNIO, me escribe para contarnos que les han nominado como mejores diseñadores jóvenes del año. «Estamos muy emocionados por la nominación… y porque nos han llamado jóvenes.» ¡Mucha suerte jóvenes!

IN HER EYES

eyes

Federico Frangi me escribe porque va ha realizar un nuevo proyecto fotográfico titulado «In her Eyes». El viaje, programado para iniciarse en febrero del 2015, además de recorrer toda la India de Sur a Norte en 6 meses, será también la búsqueda de una pequeña nómada tibetana del clan Changpa, que se encontró cerca de la frontera con Tibet y que significará el cierre de una trilogía que comenzó en el 2009 (2009, 2012 y 2015) y que será mostrada en Casa del Tibet Barcelona.

in her eyes 2

El proyecto se está financiando en crowdfunding Verkami (hasta el 29 de noviembre). Ya casi ha conseguido su objetivo económico, pero le falta un último empujón. Os dejo el enlace por si os apetece apoyarle o simplemente conocer la historia apasionante de sus últimos viajes.

KIDEOH

KIDEOH

Masús es una mexicana, de padres navarros, que hoy está afincada en Barcelona. Ella me escribe para presentarme KIDEOH, un antiguo convento en el barrio del Born, Barcelona, reconvertido ahora en espacio de co-working.

slider moka mesa

«Kideoh es el espacio donde damos la mano a gente creativa para conseguir conjuntamente que las ideas se transformen en objetos originales para tus hijos. Apoyamos a jóvenes diseñadores e ilustradores a desarrollar sus productos, potenciamos la elaboración local y en definitiva, creamos objetos únicos para compartir.»

LUDUS LUDI

EL-BALANCIN_Ludus-Ludi_PICO-PAO_26-600x451

Verónica me escribió hace ya mucho tiempo para hablarme de Ludus Ludi, una colección de juegos creada por PICO PAO, que ya se distribuye en museos como el Moma, el Reina Sofía, también en la librería la Central, etc.  Aunque en su día se me quedó en el tintero ahora la rescato, porque la historia es tan bonita que no me resisto a compartirla (casi) entera con vosotros:

Las-Escaleras-Ludus-Ludi-PICO-PAO-4-600x451

«PICO PAO es un taller con una larga trayectoria artesanal cuya historia comienza en 1979 en Lubián, un pequeño pueblo de España escondido en las montañas fronterizas con Portugal. En la comarca vecina de Tras os Montes, al pájaro carpintero lo llaman Pico Pao (pico de madera). El canto de este hermoso pájaro verde suena como el relincho de un caballo y los golpes de su pico sobre los árboles se oyen en el valle confundidos con los martillos de los carpinteros golpeando las maderas de los tejados.»

Las-Escuadras-Ludus-Ludi-PICO-PAO-10-600x451

«Algún tiempo atrás, en esa casa había vivido una mujer con sus seis hijos. La pobreza de aquellos niños, su ingenio para utilizar como material cualquier cosa encontrada y su espíritu de fabricantes produjo los juguetes más bonitos y envidiables que un niño podía tener. De esa envidia y de la admiración que producía la cultura de subsistencia de los pueblos de montaña, nació este pequeño taller de Lubián.»

Las-Sillas-Ludus-Ludi-PICO-PAO-1-500x500

«En la etapa actual, PICO PAO afronta la refundación del viejo taller incorporando a los miembros más jóvenes de la familia y centrando su actividad en la producción y edición de juegos originales. Los nuevos juegos, pertenecientes a la colección Ludus Ludi, se caracterizan por la falta de reglas y por ser, más que otra cosa, materiales para la experimentación poética, la estimulación del pensamiento abstracto, la interpretación de los hallazgos azarosos y el disfrute lúdico de los sentidos a través del arte plástico. Estos juegos permiten a todo tipo de personas observar el comportamiento del lenguaje del arte y comprobar cómo el azar, la intuición, la curiosidad y el atrevimiento dan lugar a experiencias sorprendentes, hermosas, divertidas, inquietantes, que además descubren muchas de las íntimas sensibilidades que desconocemos de nosotros mismos.»

 

TANGRAM-3DLudus-Ludi_PICO-PAO-500x500

 

Imágenes © TolotolaMinúsculaDSIGNIOFederico FrangiKIDEOHLudus Ludi.